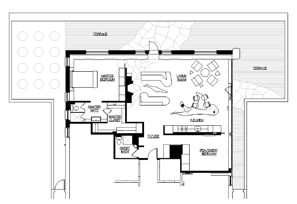
Upper West Side Loft : gác xép tại Manhattan Xinh Blog 13:23 kien-truc-bac-my Edit Upper West Side Loft Hiện diện tại Manhattan, căn gác cải tạo nàycải tạo này có một cái nhìn trong Bảo tàng Lịch sử Tự nhiên Central Park. Hai căn hộ nhỏ được kết hợp thành một, tạo không gian mở hoàn toàn với nhau. Share on Facebook Share on Twitter Share on Google Plus About Xinh Blog Đây là 1 website thiết kế kiến trúc nhà ở tổng hợp từ nhiều nguồn, chúng tôi không chịu trách nhiệm về nội dung bài đăng này. RELATED POSTS
0 nhận xét:
Đăng nhận xét